$718952
PLUS GST
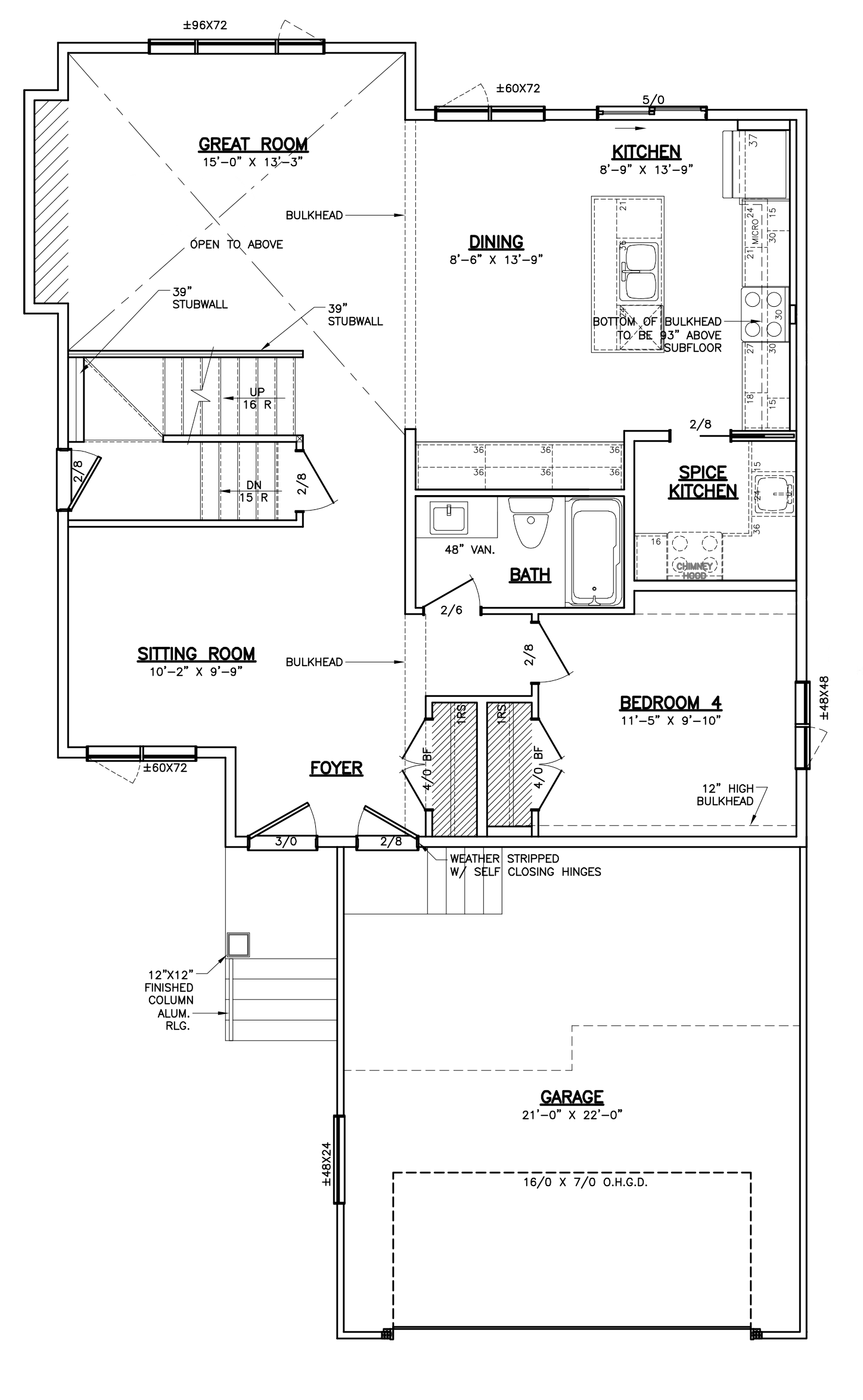
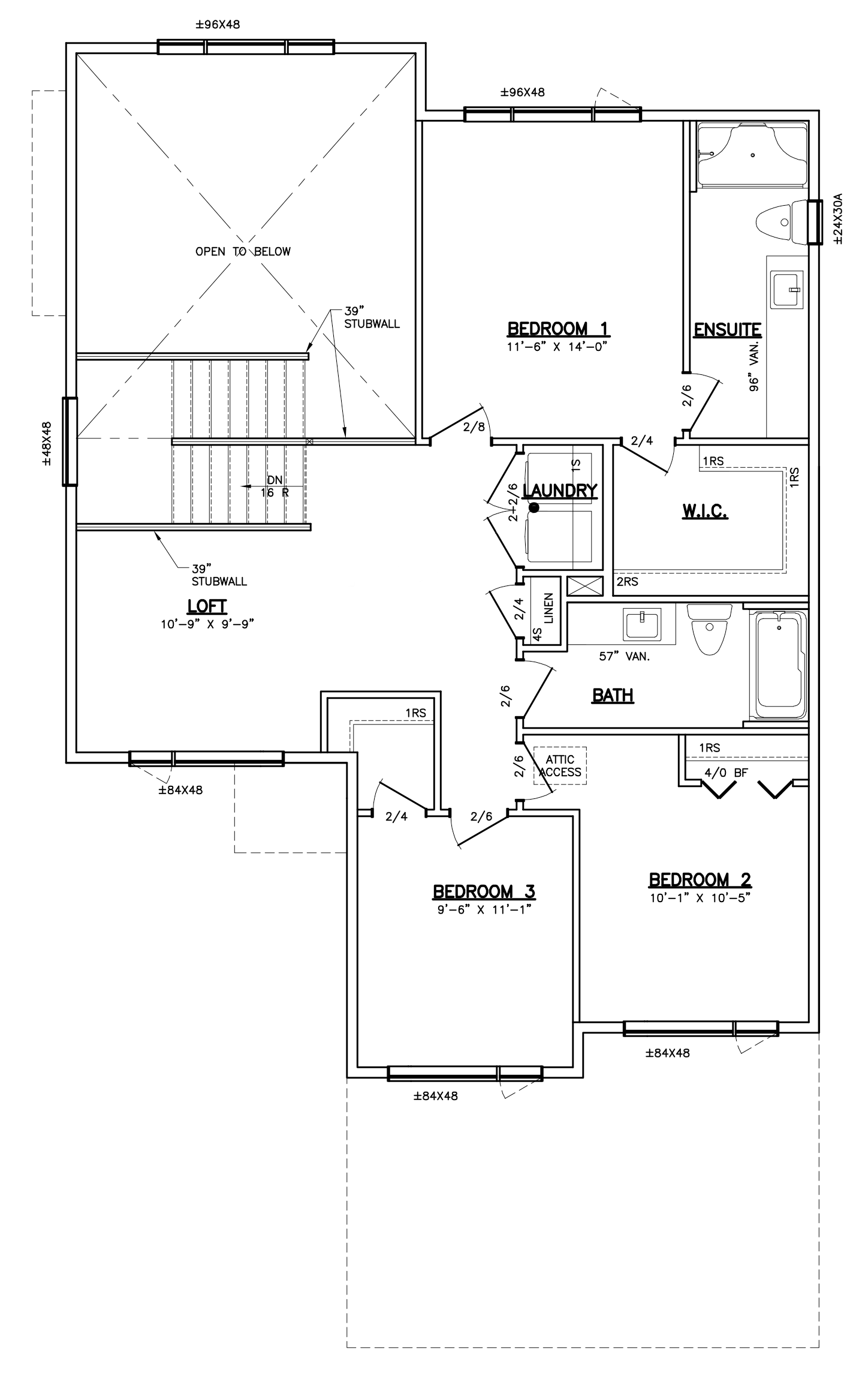
| 2193 SQFT | 4 Bedrooms | 3 Baths
$718952
PLUS GST
| 2193 SQFT | 4 Bedrooms | 3 Baths
$718952
| 2193 SQFT
| 4 Bedrooms
| 3 Baths
Home Model Highlights
- 21′ x 22′ double car garage
- Side entry to basement stairway
- Main floor sitting room
- Main floor bedroom
- Kitchen includes quartz countertops, two-tone cabinets and a spice kitchen with quartz countertops
- Laminate flooring throughout main floor
- Cultured marble countertops in all bathrooms
- Ensuite includes double vanity
- Black lighting package
- 4″ MDF baseboards and 3″ casings
- Electric 65 U.S. gallon hot water tank
- 200 amp panel
- Triple pane and dual Low-E windows, per plan
- Piled foundation
- 1-2-5-10 National Home Warranty
Mortgage Calculator
This is not an offer of mortgage and is not binding. Calculation above does not account for any Insurer Premiums. Please confirm qualification and rates with a mortgage specialist.
Request Information





